loader image
Skip to main content
  • Prabidhik Notes
    0%

Focus Mode is ON. Click ‘X’ at right bottom to close it.

  • Previous
  • Downloads
    Site
    Downloads
  • Next
  • Categories
    • All categories
    9-12 Civil Engineering
    • 9 Civil Engineering
    • 10 Civil Engineering
    • 11 Civil Engineering
    Pre Diploma
    • Pre Diploma in Building Construction (Apprenticeship Model)
    • Loksewa
  • Home
  • Blogs
Log in
Forgot your password?

Or login using your account

Categories Collapse Expand
  • All categories
9-12 Civil Engineering
  • 9 Civil Engineering
  • 10 Civil Engineering
  • 11 Civil Engineering
Pre Diploma
  • Pre Diploma in Building Construction (Apprenticeship Model)
  • Loksewa
Home Blogs

    Downloads

    Completion requirements

    📁 Course Materials

    This folder contains all the essential resources for this topic/module. Each file is carefully curated to help you understand the key concepts and apply them practically.

    • 📄 Documents: Lecture notes, diagrams, and guidelines
    • 📊 Excel Sheets: Templates and data for assignments
    • 🖼️ Images: Diagrams and reference visuals

    ➤ Click on any item to preview or download. Use these files during lectures, assignments, and revision.

    Tip: For the best experience, view this folder on a desktop or tablet.

      • Demo Excel File for Topomap.xlsx Demo Excel File for Topomap.xlsx
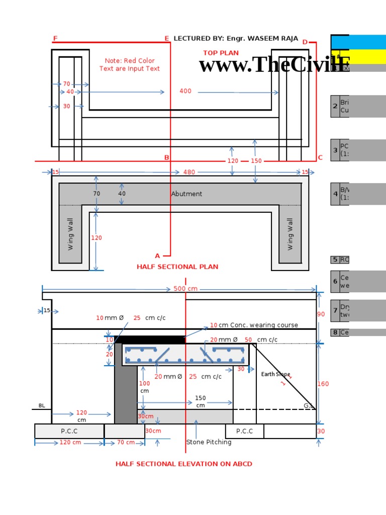
      • Slab Culvert Slab Culvert
    Contact site support
    You are not logged in. (Log in)
    Get the mobile app
    Powered by Moodle









    Privacy Policy Terms & Conditions

    Copyrights Content